59.51.60.5 - /FXD/2V2CW008A0/20141007204230/


[To Parent Directory]

2014/10/7 20:42 90317 公差错.png
2014/10/7 20:42 131484 铣槽宽不符.png
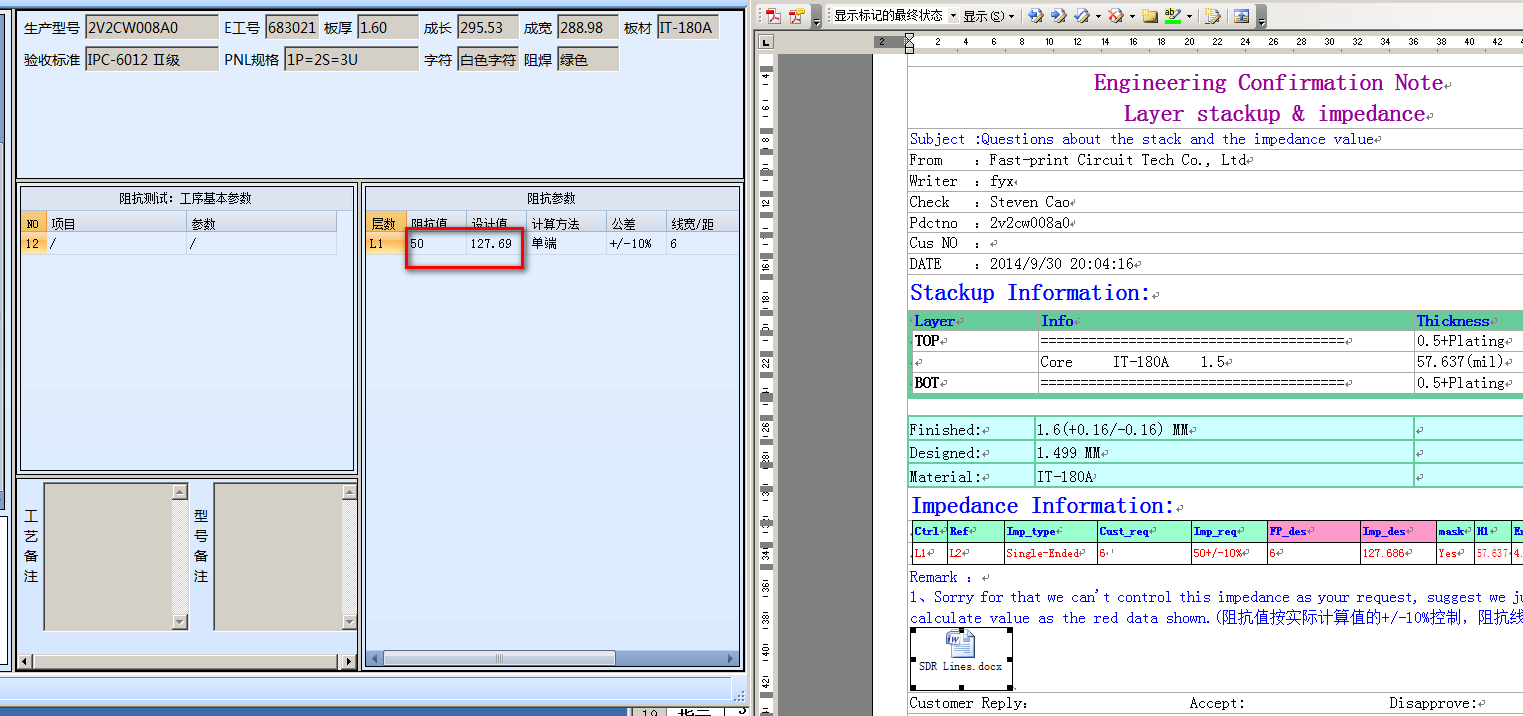
2014/10/7 20:42 63317 阻抗值按计算值控制.png