59.51.60.5 - /FXD/4V2E20BNA0/20130731172220/


[To Parent Directory]

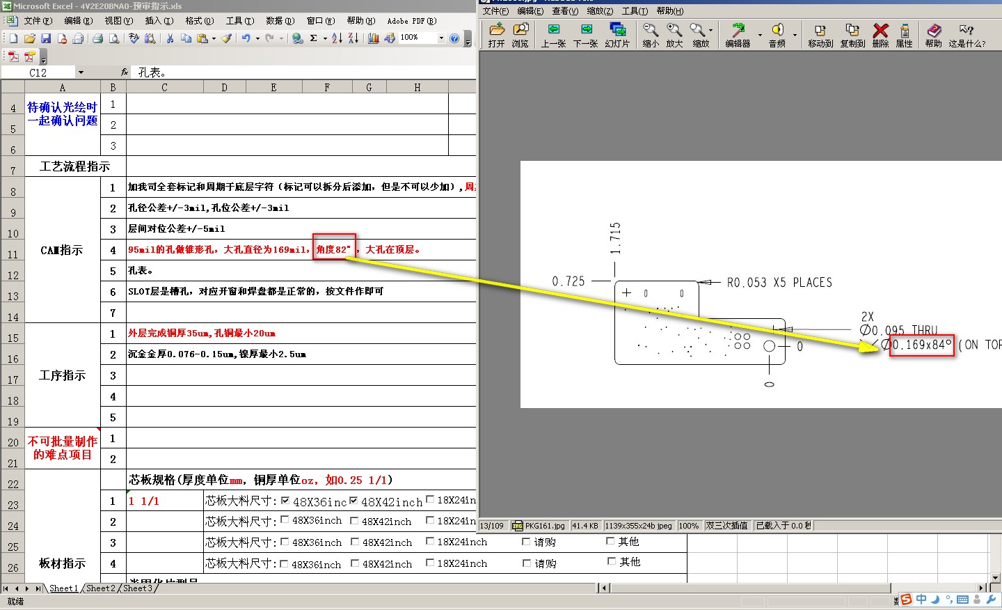
2013/7/31 17:27 253463 附图锥形孔角度请确认.jpg