59.51.60.5 - /FXD/4V2J20B7A0/793318b4-21cc-472d-9c14-d57c4e6ae3b2/


[To Parent Directory]

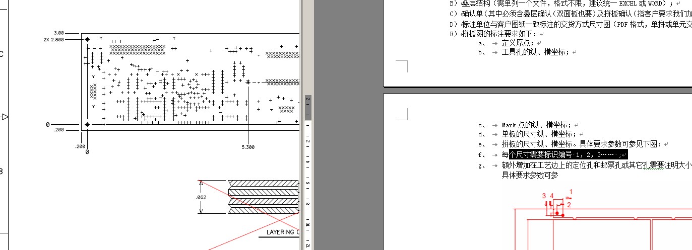
2019/10/24 15:19 125484 每个尺寸要标上编号.jpg